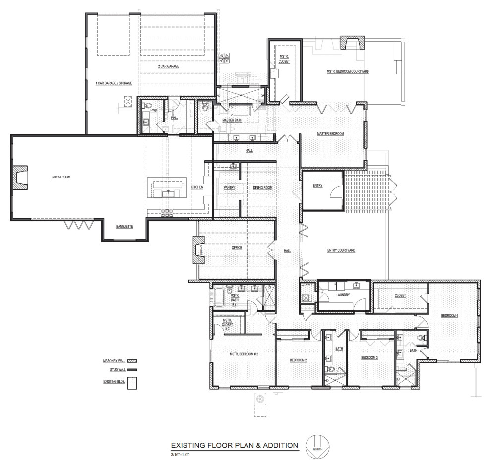
3101 N 53rd Place – Phoenix, AZ
This custom residential project includes a full home remodel and a substantial new addition featuring a 3-car garage, expanded master suite, and updated living spaces. The design blends contemporary elements with practical livability, supported by structural enhancements and site upgrades. A complete concrete scope—including new foundations, slabs, and driveway—was executed to support the new build. The project showcases our ability to manage complex residential construction under self-certified city-approved plans, ensuring both speed and quality.
